← London Borough of Barking and Dagenham

Status

Pending House extension
Received
Last month
New homes
0

Full proposal

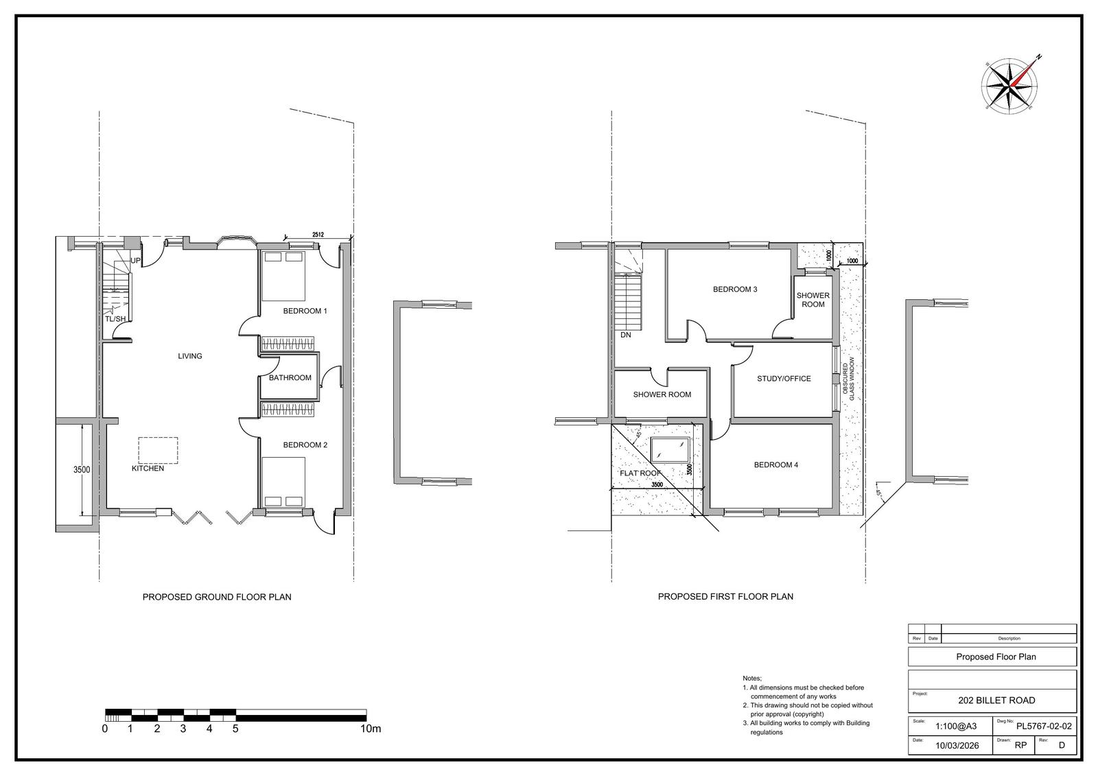
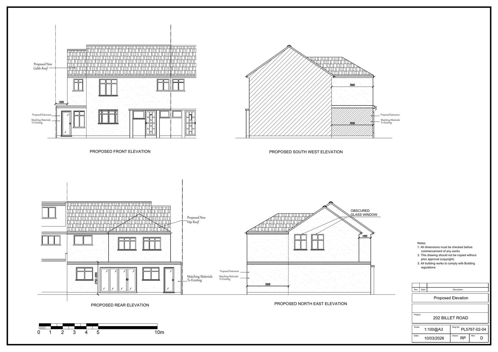
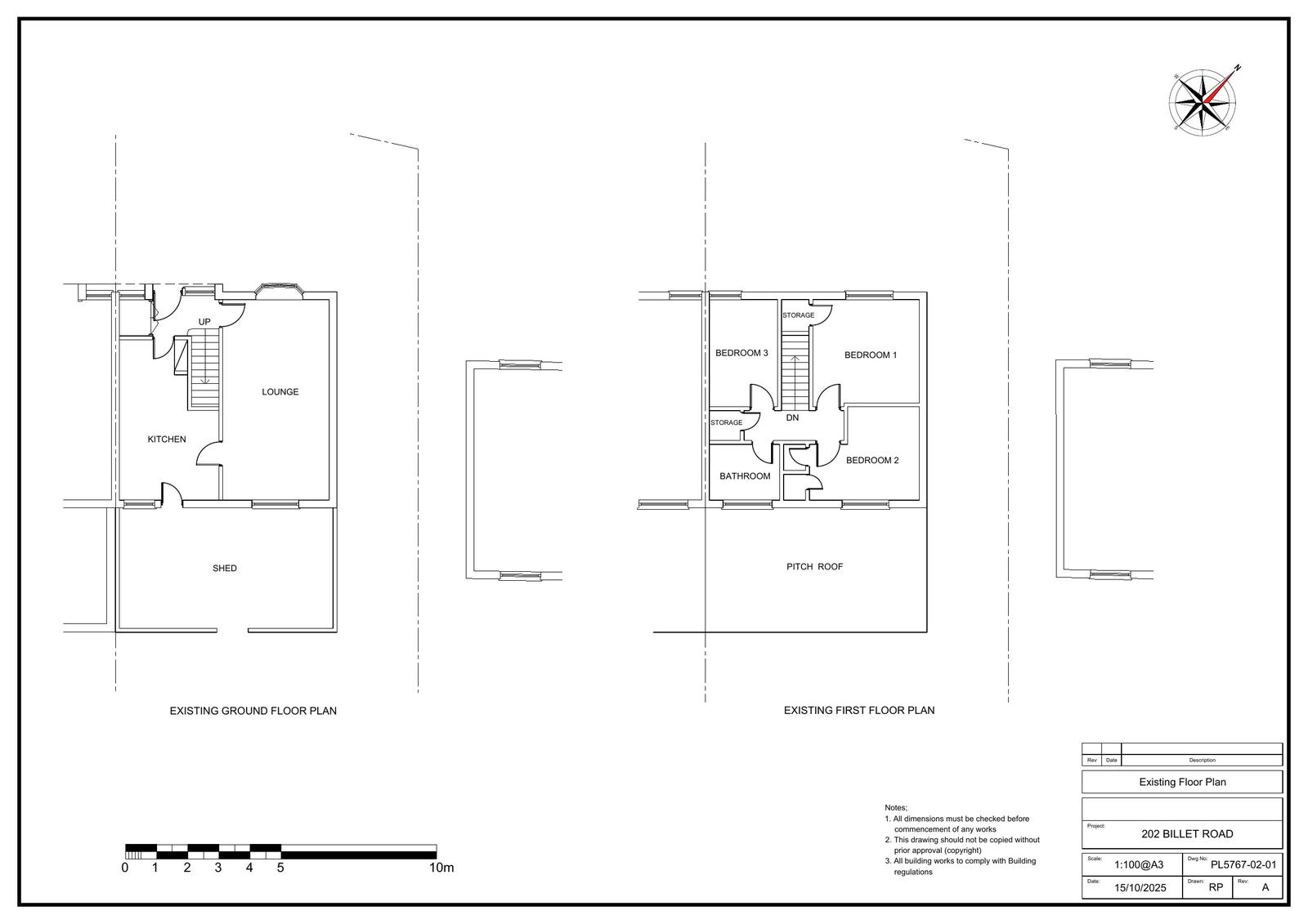
Demolition of existing shed and the construction of a part two storey part single storey rear and side extension

Documents

Design and Access Statement
Archived · Original link
Plans / Drawings
Archived · Original link
Plans / Drawings
Archived · Original link
Plans / Drawings
Archived · Original link
Plans / Drawings
Archived · Original link

Have your say

Your comment matters. Councils must consider every representation that raises material planning considerations.

Write a comment