← Arun District Council

Status

Pending House extension
Received
Last month
New homes
0

Full proposal

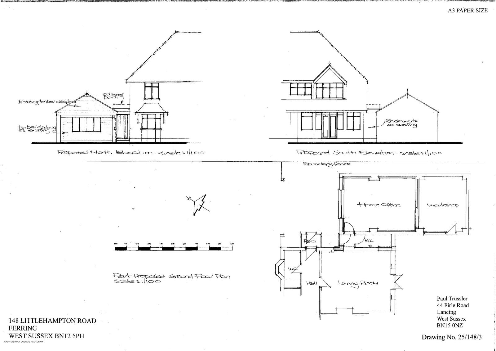
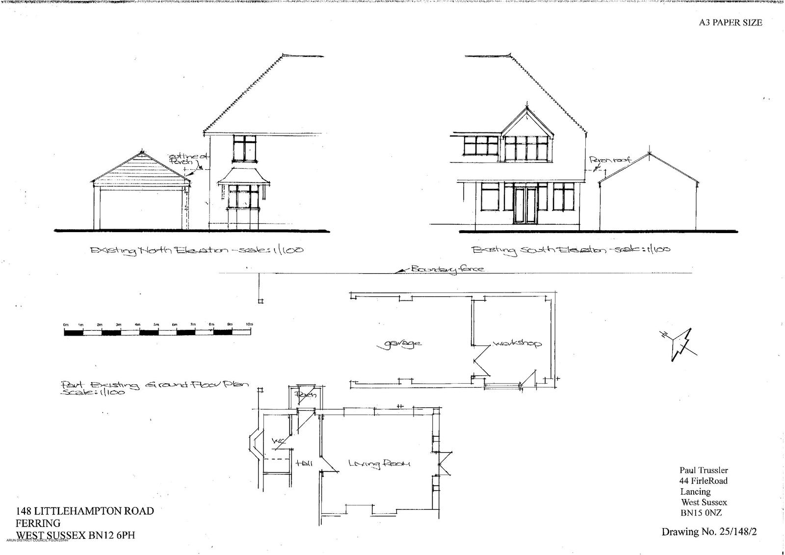
Detached garage to front garden. Infill extension linking main house to existing garage and part conversion of existing garage to home office.

Documents

Document
Archived · Original link
Document
Archived · Original link
Document
Archived · Original link
Document
Archived · Original link
Document
Archived · Original link
Document
Archived · Original link
Document
Archived · Original link
Document
Archived · Original link
Document
Archived · Original link
Document
Archived · Original link

Have your say

Your comment matters. Councils must consider every representation that raises material planning considerations.

Write a comment