← Arun District Council

Status

Pending House extension
Received
14 Feb 2026
New homes
0

Full proposal

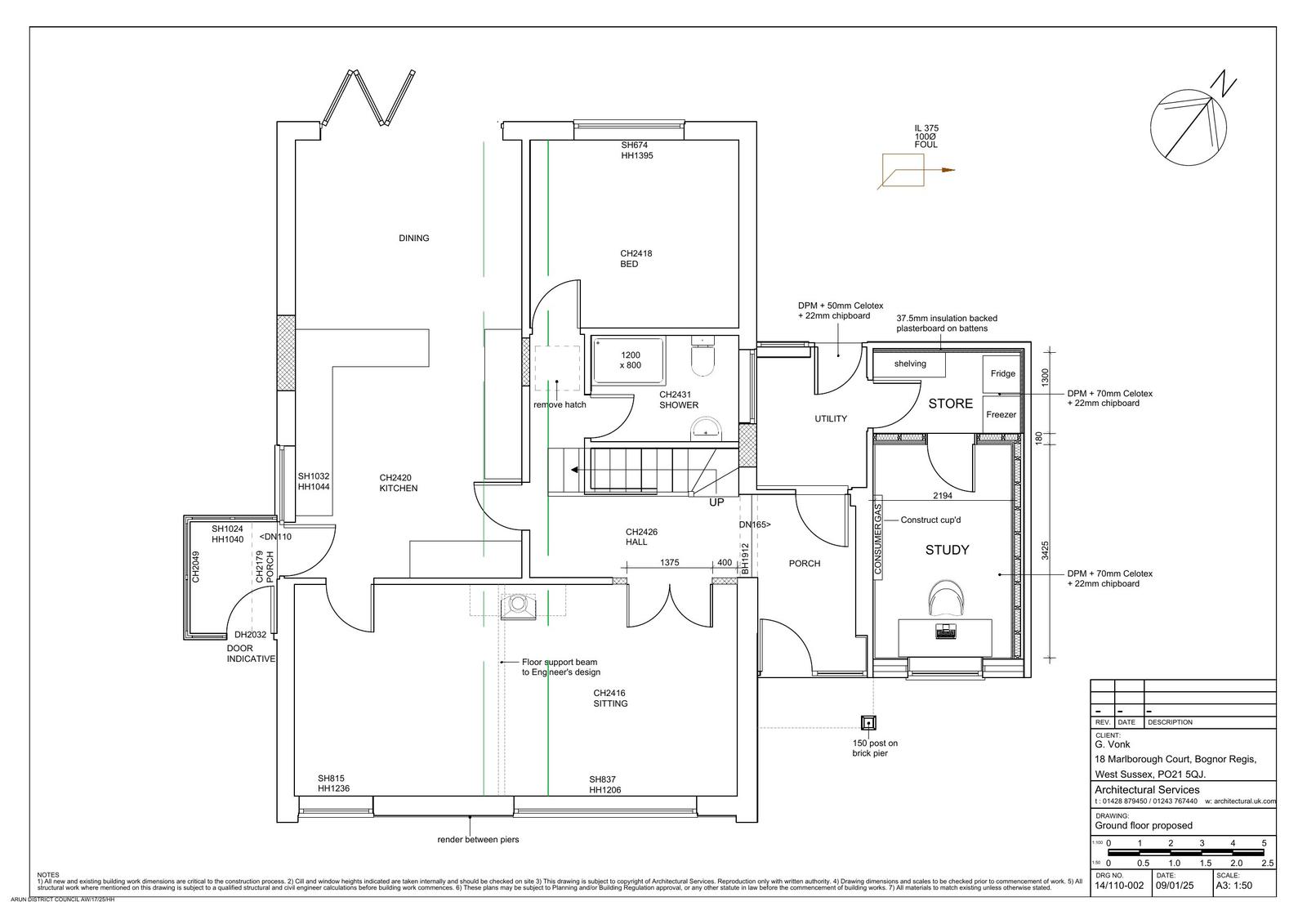
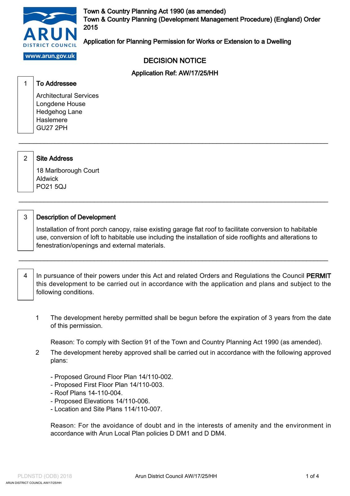
Installation of front porch canopy, raise existing garage flat roof to facilitate conversion to habitable use, conversion of loft to habitable use including the installation of side rooflights and alterations to fenestration/openings and external materials.

Documents

Document
Archived · Original link
Document
Archived · Original link
Document
Archived · Original link
Document
Archived · Original link
Document
Archived · Original link
Document
Archived · Original link
Document
Archived · Original link
Document
Archived · Original link
Document
Archived · Original link
Document
Archived · Original link

Have your say

Your comment matters. Councils must consider every representation that raises material planning considerations.

Write a comment