← Adur & Worthing Councils

Status

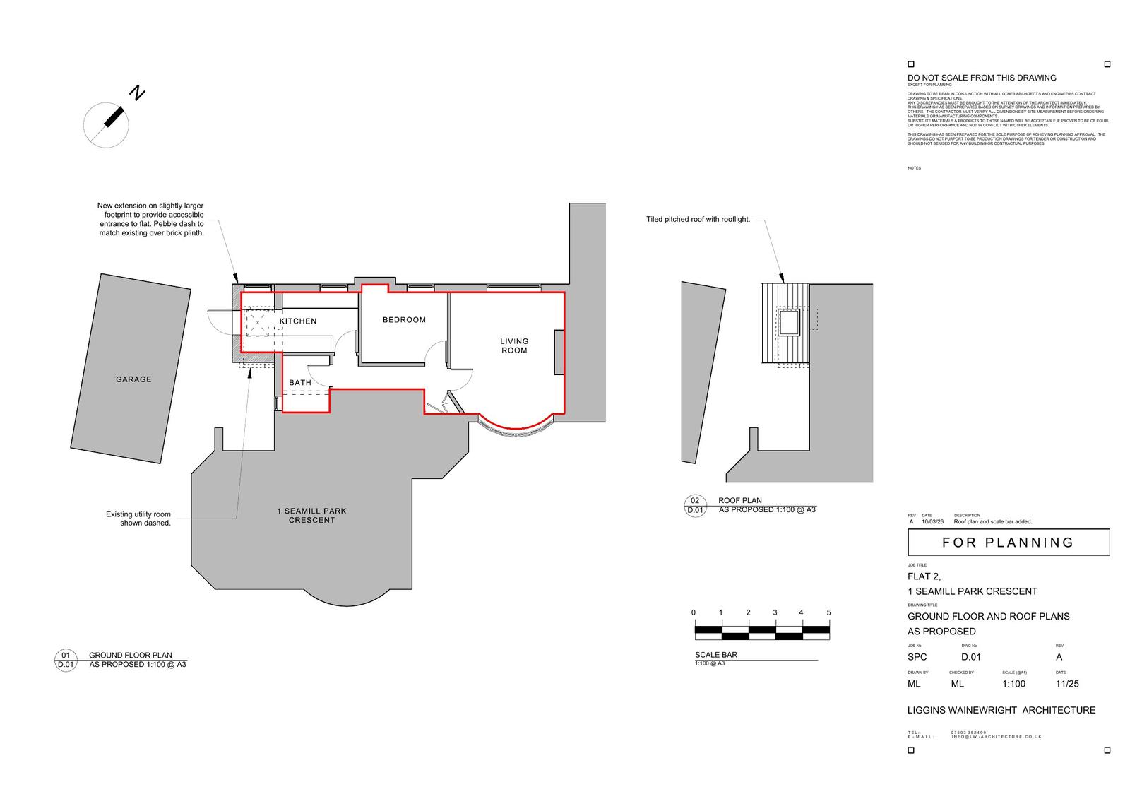
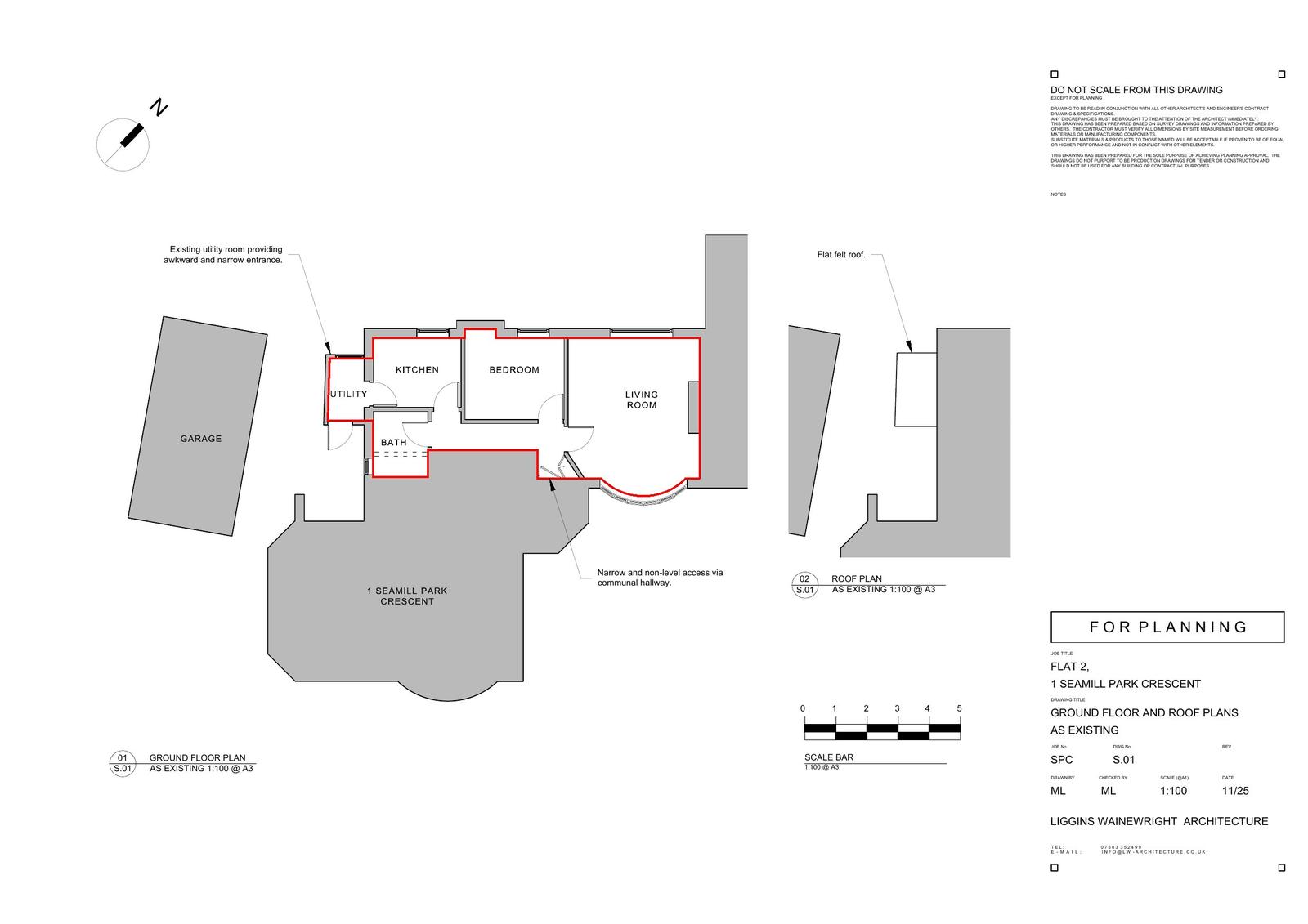
Registered House extension
Received
Last month
New homes
0

Full proposal

Demolition of existing side extension and replacement with new side extension to create accessible entrance

Documents

Latest plan
Archived · Original link
Latest plan
Archived · Original link
Supporting Statement
Archived · Original link
Latest plan
Archived · Original link
Application Form
Archived · Original link

Have your say

Your comment matters. Councils must consider every representation that raises material planning considerations.

Write a comment